Logo
  • Image 1
  • Image 2
  • Image 3
  • Image 4
  • Image 5
  • Image 6
  • Image 7
Retour au listing Réf. 428
Terrain
230 000€
Surface terrain 3.75 ares

Description du bien

Gruemmelscheid
L'agence immobilière IMMO NAM vous propose un terrain à Gruemmelscheid avec la première dalle terminée au prix de 230 000€. Il s`agit d`un terrain avec une surface de 3.75ar.

Des plans autorisés pour une maison unifamiliale sont disponibles et peuvent être envoyés sur demande.
Possibilité d'achat en gros-ouvre fermé au prix de 350 000€.

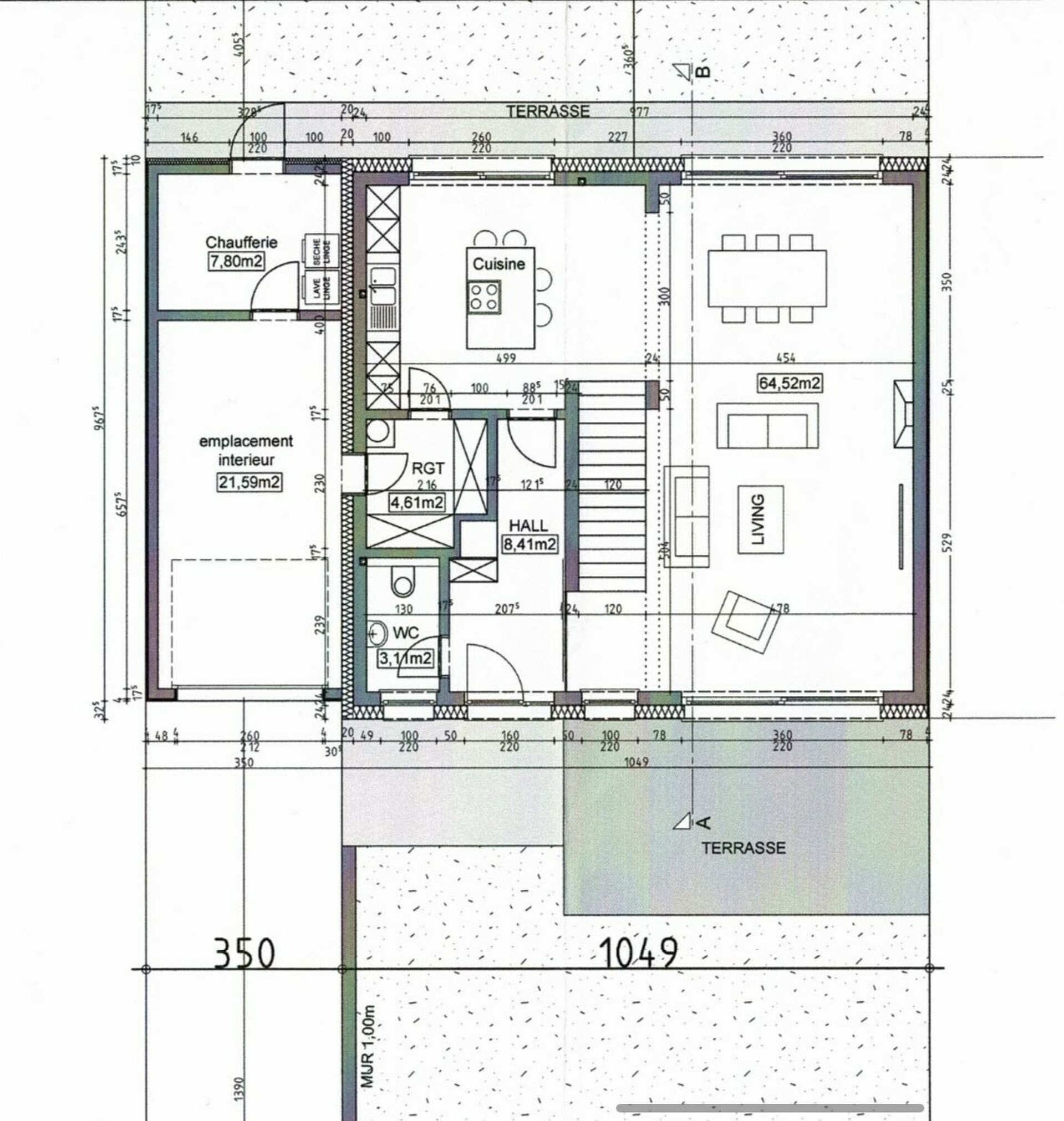
La maison unifamiliale d`une surface brut de +/- 202m2 se compose comme suit :
- Emplacement intérieur
- Hall d`entrée
- WC séparée
- Cuisine ouverte avec un accès à une terrasse et un grand living également entourée d`une terrasse
- 3 Chambres dont une est une chambre parentale avec un accès sur un dressing et salle de bain
- Une salle de bain
- Grenier

Pour toutes questions, n`hésitez pas à nous contacter.
L`agence immobilière IMMO NAM reste avec son équipe toujours à votre disposition.

Documentation et vente:
info@immonam.lu
Téléphone : +352 26 56 19 57 / +352 26 80 36 12
+352 691 570 630

Caractéristiques

Informations
Référence 428
Surface terrain 3.75 ares

Localiser le bien

L'adresse exacte de ce bien n'est pas renseignée

Contactez-nous

Partager l'annonce